SPZ系列產品是一種高性能比、多功能的先進制動產品,廣泛適用于集裝箱起重機、卸船機、鋼廠鑄造起重機、水電橋機、升船機、纜機等設備的理想工作制動及緊急制動。
電力液壓盤式制動器符合DIN15435標準和JB/T7020-2006標準。配套符合DIN15430標準的Ed系列推動器。
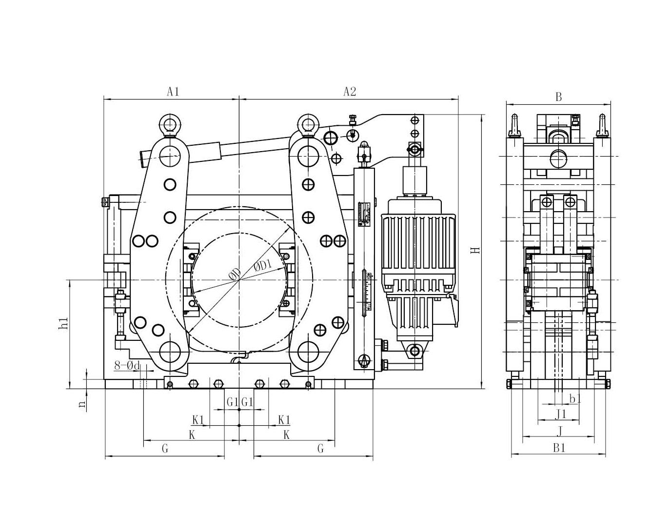
▲ 對中式結構設計,摒棄傳統臂盤的偏置式,實現彈簧力作用于中心,對制動臂不產生扭力,延長軸套的使用壽命,提高傳動效率。
▲ 傳力系統結構的優(yōu)化配置實現以單推動器的雙施力點雙制動點,大制動力矩的對稱制動運作機理,較小空間位置內實現較大制動力矩。
▲ 通過兩個對稱點同時將制動力作用到制動盤上,從而補償對軸產生的徑向力。
▲ 附加方便手動釋放裝置、等退距裝置、摩擦片磨損自動補償和顯示等多種功能配置的設計。磨擦片磨損后無需人工調整。
▲ 常閉式設計,(斷電)彈簧制動,(通電)推動器釋放。
◆環(huán)境溫度:-20℃~50℃,使用地點的海拔高度符合GB755-2000。當低于-20°C時,推動器工作油改用YH-10航空液壓油或按要求帶加熱器,詳情參考Ed推動器樣本。
◆周圍工作環(huán)境中不得有易燃、易爆及腐蝕性氣體,空氣相對濕度不大于90。
◆一般用于三相交流電源:380V、50HZ。(根據需要可生產60Hz或不同的電壓,請注意推動器銘牌,訂貨時事先說明)。
◆戶外雨雪浸蝕或有腐蝕性氣體和介質應采用防腐型產品。
● 產品型號:SPZ-500/E301/8,SPZ-710/E500/12,
● 適用盤徑:320-710mm
● 制動力矩:3000-24000Nm







